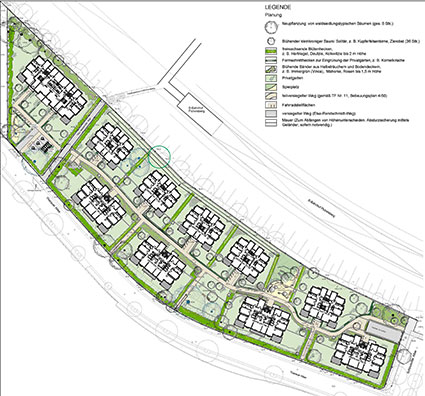
Mehrfamilien-Villen Westendpark
Neubau von 10 Mehrfamilien-Villen und Tiefgarage mit 110 Stellplätzen auf modelierten, stark begrünten Gelände mit hervorragender Verkehrsanbindung
100 WE mit ca. 11.200 m² WFL auf 14.000 m² Grundstücksfläche.
Zuarbeit zur B-Plan – Anpassung, LP 1-4 und tlw. 5
BUWOG / T-Conzept/
Berlin-Charlottenburg   2013-15
Auf dem ehemalig von ausländischen Vertretungen genutztem Gelände der Tharauer Allee 4-14, das zwischenzeitlich eine stark begrünte Fläche bildete, wurde der B-Plan zeitgemäß ergänzt, um hochwertigen Wohnungsbau zu ermöglichen. Die Planung erfolgte mit großem Zeitdruck.

AG Grundstücksentwicklung/Bauantrag: T-Conzept, Berlin; 2013 | AG Bauantrag/Planung/Ausführung: BUWOG - Westendpark GmbH & Co. KG; 2014/2015